Column
コラム
-

プラン間取りTOP5【平屋編】
徳島で新築住宅、注文住宅を考えられている皆様こんにちは!徳島の工務店、ラッフルズホームです。今回は特別編!弊社の建築士が描く手描き図面人気TOP5をこちらに掲載していきます✨もっとラッフルズホームのことが知りたい!実際のお家が見たいという方はこちら↓他の資料が見てみたい!お家づくりを考え始めた方はこちら↓
-

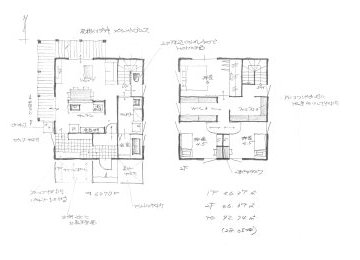
プラン間取りTOP5【2階建て編】
徳島で新築住宅、注文住宅を考えられている皆様こんにちは!徳島の工務店、ラッフルズホームです。今回は特別編!弊社の建築士が描く手描き図面人気TOP5をこちらに掲載していきます✨もっとラッフルズホームのことが知りたい!実際のお家が見たいという方はこちら↓他の資料が見てみたい!お家づくりを考え始めた方はこちら↓
-

外壁の色の選び方② vol.297
徳島で新築住宅、注文住宅をご検討中の皆様、こんにちは!徳島の工務店、ラッフルズホームの橋本です!徳島でお家づくりをご検討される方向けに、役立つ情報を発信していきたいと思います♪少しでも参考にして頂けたら幸いです( ^ ^ )今回は外壁の色にはどんな種類があるのか見て行きたいと思います。・ベージュベージュは白に暖色系の色が混ざった色で暖かみがあり、優しい印象にもなります。ベージュの外壁は周りから悪目立ちすることがないカラーで、街に溶け込むことができます。・ホワイトホワイトは清潔感や高級感が出るとても人気の高い色です。明るい印象も与えます。また、どんな色にも合わせやすいので、さまざまなデザインの幅があります。・ブラックブラックは金属系サイディングを選んだ方がよく使用される色です。モダンで高級感のある住宅になったり、クールでスタイリッシュな住宅になります。・グレーグレーは高級感あるイメージは残しつつ、落ち着いた印象にしたい方におすすめです。ライトグレーなら爽やかに、ダークグレーならモダンでシックな印象になります。またグレーは比較的汚れが目立ちずらいなどのメリットもあます。・ブラウンブラウンは色の濃淡の幅が広いため、単色でもツートンカラーでもよく選ばれています。白系と組み合わせて、メリハリのついたデザインが特に人気です。・ネイビーネイビーはクールで落ち着いた色で、外壁塗装の中でもおしゃれな仕上がりを期待できる色の一つです。重厚で落ち着いた住宅、クールで涼しいイメージの住宅にしたい人におすすめです。 他にも、グリーン、レッドなど多種多様な色の新築住宅がありますが、今回はある程度人気の高い色を取り上げてみました。 次回は色の組み合わせ方について書いていきたいお思います。
-

外壁の色の選び方① vol.296
徳島で新築住宅、注文住宅をご検討中の皆様、こんにちは!徳島の工務店、ラッフルズホームの橋本です!徳島でお家づくりをご検討される方向けに、役立つ情報を発信していきたいと思います♪少しでも参考にして頂けたら幸いです( ^ ^ )新築住宅を建てたいと思っている方で、こんなお家にしたいなと考え始める時、外観と内観をざっくりとイメージし始めると思います。そんな方にオススメしたい、外観の色についての書いていきたいと思います。 せっかく一生に一度の大きな買い物と言われている新築住宅を建てるとなれば、やはりおしゃれな住宅にしたいと思いますよね。機能性ももちろん大切ですが、新築住宅の外観は自分だけではなく他の方達の目にもさらされることになります。新築住宅の外観はその家の顔ともいえるものになるので、一生気に入って暮らせるものを選びたいですよね。 まず今回は色の前に新築住宅の外観の選び方のオススメの流れをご紹介します。①好みのデザイン・色を絞り込むご家族で新築住宅を考えている場合は、意見が分かれることもあります。今はInstagramやインターネットにたくさんの情報がありますので、その中から気に入ったものをピックアップしていき、家族と共有してデザインや色を絞り込んでいきましょう。②大まかな形を決める三角屋根のお家や片流れ屋根のお家、陸屋根のお家など形も様々です。形によって新築住宅の雰囲気もかわいいもの、モダンなもの、クールな物などに分かれてきますので、好みの形を探していきましょう。③メインカラーを1、2色選ぶ新築住宅の外観の色は印象を大きく左右します。たくさんの色を使用すると一般住宅というよりはサーカスのようなにぎやかな雰囲気になり落ち着きのないお家になってしまうかもしれません。おすすめはメインカラーとアクセントカラーの2色使いです。また同じタイプの色でも濃淡によって印象も変わりますので、そのように使うのもありかと思います。 次回は新築住宅の外観の色がどのようなものがあるのかや、人気のカラーなどについて書いていきたいと思います。
-

サッシの種類とメリット、デメリット③ vol.295
徳島で新築住宅、注文住宅をご検討中の皆様、こんにちは!徳島の工務店、ラッフルズホームの橋本です!徳島でお家づくりをご検討される方向けに、役立つ情報を発信していきたいと思います♪少しでも参考にして頂けたら幸いです( ^ ^ )今回はサッシの開閉について説明させて頂きたいと思います。サッシの開閉の種類はたくさんありますが、大きく分けて説明していきたいと思います。①引き違い窓日本の窓で一番ベーシックに使われている窓です。横にスライドさせて障子のように開く窓です。テラスや寝室など様々なお部屋で使われていて、開閉しやすい窓となっています。②FIX窓窓の開閉ができない窓となっていて、採光を取り入れる窓となっています。主に吹抜けや階段の上部など普段開閉できないところに設置されることが多い窓となります。③縦滑り窓縦方向に回転軸があり、窓を室外側へ開く窓となっています。窓の開閉しやすく、室内に空気入れやすい窓となっています。④横滑り窓横方向に回転軸があり、縦滑り窓を90度回転させた窓となっています。窓を開閉した時に雨が入ってこないメリットがあります。風通りは縦滑り窓のほうがよいと言えます。⑤片開き窓FIX窓と縦滑り窓を組み合わせた窓で採光が取り入れやすい窓となっています。⑥片上げ下げ窓上下の障子のような窓の上部は固定されて下部の窓が開閉できるようになっている窓となっています。欧米で多く採用されている窓で洋風住宅にピッタリの窓となっております。他にも連窓や天窓、小窓、ツーアクション窓、ガラス窓ルーバー窓など様々な窓の開閉方式があります。窓の開閉方式は建物の配置や立地、間取りなど様々な条件で選択することができます。プランを見て変更したいサッシがありましたら変更可能となっておりますのでお気軽にご相談ください。
-

サッシの種類とメリット、デメリット② vol.294
徳島で新築住宅、注文住宅をご検討中の皆様、こんにちは!徳島の工務店、ラッフルズホームの橋本です!徳島でお家づくりをご検討される方向けに、役立つ情報を発信していきたいと思います♪少しでも参考にして頂けたら幸いです( ^ ^ )今回は住宅に使われている複層ガラスついてお話したいと思います。複層ガラスというのが、2枚以上のガラスで構成されているもののことを指します。2枚のガラスで構成されているガラスをペアガラス、3枚で構成されていることでトリプルガラスと呼ばれます。住宅でサッシがあるところは外部の熱が影響受けやすいと言われています。ガラスの枚数を増やすことで外部の熱の影響を受けにくくする効果があります。ガラスの枚数を増やすと当然窓の重量も重くなり、窓の開閉にも力を入れる必要があります。しかしその分外気の影響を受けにくいので冷暖房の空気が外部に逃げにくく光熱費の削減につながります。またガラスとガラスの間に中空層があります。この中空層には空気の場合やガス、真空など様々な場合があります。この中空層に入っている気体も実は重要であり、空気<ガス<真空の順で断熱性能が良くなります。またLoW-Eと呼ばれる金属膜を表面に張ることで断熱性能を上げる方法もあります。複層ガラスについて説明させていただきましたが、お家の性能を上げるために様々な工夫がこなされています。ラッフルズホームのお家の見学の際にもご覧いただければと思います。
-

サッシの種類とメリット、デメリット① vol.293
徳島で新築住宅、注文住宅をご検討中の皆様、こんにちは!徳島の工務店、ラッフルズホームの橋本です!徳島でお家づくりをご検討される方向けに、役立つ情報を発信していきたいと思います♪少しでも参考にして頂けたら幸いです( ^ ^ )今回はサッシの種類についてお話したいと思います。サッシは素材別に分けると、アルミサッシ、樹脂サッシ、木製サッシ、複合サッシがあります。それぞれの特徴について簡単に説明したいと思います。①アルミサッシは強度が高く軽いのが特徴となっているサッシです。 しかし熱伝導率が高いため 外気の影響を受けやすい造りとなっています。 そのため、冬場は結露しやすく窓際が水浸しになる場合があります。②樹脂サッシは熱伝導率が低く断熱性能に優れている為、 多くの新築住宅で活用されています。 しかし樹脂サッシは強度を高めるため厚く作られており 窓の開閉はアルミサッシに比べると重い造りになっています。③木製サッシは質感が良いものが多くデザイン性が優れたサッシです。 その上断熱性能が高いサッシになっています。 ただし経年劣化がしやすく、 定期的に塗装などのメンテナンスを行う必要があるため、 他のサッシに比べて管理が大変です。④次に複合サッシですが、室外側はアルミ、室内側は樹脂を使用したサッシのため、 アルミ樹脂複合サッシと呼ばれる場合もあります。 雨風にさらされる室外側をアルミにして耐久性を高め、 室内側を樹脂にして断熱性能を高める効果があります。 それぞれサッシにはメリットやデメリットがあるため理解した上で検討していきましょう。ラッフルズホームでは複合サッシを採用させて頂いております。次回は複合サッシについて詳しく説明したいと思います。
-

等身大のモデルハウスを見学しよう! vol.292
徳島で新築住宅、注文住宅をご検討中の皆様、こんにちは!徳島の工務店、ラッフルズホームの橋本です!徳島でお家づくりをご検討される方向けに、役立つ情報を発信していきたいと思います♪少しでも参考にして頂けたら幸いです( ^ ^ )ラッフルズホームのモデルハウスをオープンした時にもお話しました内容を、改めてご紹介したいと思います。新築住宅・注文住宅をご検討し始めた皆さま、住宅を見学するために真っ先に行ってみようと思いつく場所はどこでしょうか。きっと、住宅展示場を思い浮かべる方が多いと思います。確かに、住宅展示場はひとつの場所に何個もモデルハウスが立っている為、一度にいろんな種類の建物を見ることが出来ますし、週末や連休にはお子様連れのご家族様向けのイベントなども開催しているので、行ってみるととても楽しいと思います。ただ、一方で住宅展示場などのモデルハウスは、『建物が広すぎて実感が沸かない』『仕様・グレードが上級すぎて費用も高く実際には使えない』実際に建築する場合とかけ離れているため、『カッコいいけど参考にはあまりならない』という声もよく耳にします。 そんな方におすすめするのが、等身大モデルハウスです。等身大モデルハウスでは、実際に土地を購入されている方の平均的な広さ・価格、実際に建物を建てる場合の平均的な広さ・価格・グレードでモデルハウスを建築しているので、イメージしていた広さ・仕様・グレードと違ったということが起こりにくいと思います。そういったことから、ラッフルズホームの見学会は全て移動式です。是非、ラッフルズホームの等身大モデルハウスで、明日からでも生活を始められそうな身近の空間で、居心地や使い勝手、生活動線などを心ゆくまでお確かめください。
-

新築住宅でウッドデッキのある暮らし vol.291
徳島で新築住宅、注文住宅をご検討中の皆様、こんにちは!徳島の工務店、ラッフルズホームの橋本です!徳島でお家づくりをご検討される方向けに、役立つ情報を発信していきたいと思います♪少しでも参考にして頂けたら幸いです( ^ ^ )新築住宅、注文住宅を考える際、家の外に関することもいろいろ充実させたいですよね。さて今回は、ウッドデッキについてお伝えしたいと思います。ウッドデッキとは、屋外に設けた木製のテラスのことです。建物の床と高さを合わせて設置し、部屋から直接ウッドデッキに出入りできるスタイルが一般的です。中には屋根を付けられたり、フェンスで囲われたりされる方もいらっしゃいます。そんな良い仕様になったら、夏場のプール、バーベキュー、ゆっくり日向ぼっこなどなんでも出来てしまいますね!外でのお家時間がとっても楽しみになります! 上記以外にもウッドデッキは様々な活用方法があります。次回は、これからウッドデッキを採用したいとお考えの方に、ウッドデッキの活用方法、利用方法をお伝えしたいと思います。








