Column

コラム

プラン間取りTOP5【平屋編】

2024.08.12(月)

徳島で新築住宅、注文住宅を
考えられている皆様こんにちは!

徳島の工務店、
ラッフルズホームです。

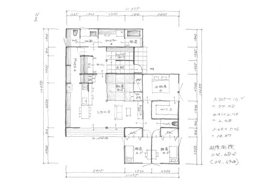
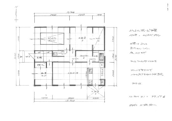
今回は特別編!
弊社の建築士が描く
手描き図面人気TOP5を
こちらに掲載していきます✨







もっとラッフルズホームのことが知りたい!
実際のお家が見たいという方はこちら↓


他の資料が見てみたい!
お家づくりを考え始めた方はこちら↓

 
一覧に戻る

Contact

お問い合わせ

定休日 水曜日 / 第2・第4火曜日